Spring til indhold
Menu

Case

Modulopbygget værkførerkontor til Westrup A/S

Kontor med modulopbyggede rum
Hos Westrup A/S i Slagelse, har vi hjulpet med at forvandle lagerplads til et stort værkførerkontor.

Det er nemlig både en enkel, hurtig og økonomisk fornuftig løsning.

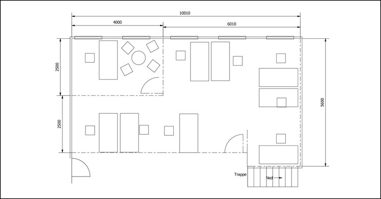
Ofte er mezzaninen løsningen på et behov for mere plads til opbevaring af materialer. Andre gange er behovet lidt anderledes. Som f.eks. i dette projekt; her var der brug for et stort kontor til værkførerteamet.

Westrup havde en eksisterende mezzanin i produktionen, der i størrelse og placering egnede sig perfekt til at etablere værkførerkontoret på:

  • Tilpas lofthøjde
  • Tæt på produktionen
  • Mulighed for godt, naturligt lysindfald.

Kontoret er bygget op af isolerede modulvægge, gulv og loft, som effektivt lukker af for støj og støv fra produktionen. Isoleringen bidrager også til et velfungerende indeklima, som giver smil på læben, når varmeregningen lander i postkassen.
De store vinduer giver både godt udsyn til produktionshallen og behageligt dagslys i kontoret.

Der er plads til 7 personer med hvert sit arbejdsbord i et åbent kontormiljø. Herudover er der et aflukket rum med et enkelt arbejdsbord og et lille mødebord. Hele kontorets samlede størrelse er på 56 kvadratmeter.

Rosss pallereoler hos Lindab A/S i Jels

Kontakt os i dag og kom i gang med dit projekt i morgen

0
    Din Kurv
    Din kurv er tomRetur til shoppen